A0862-CNC | Habitat groupé
Détails du projet
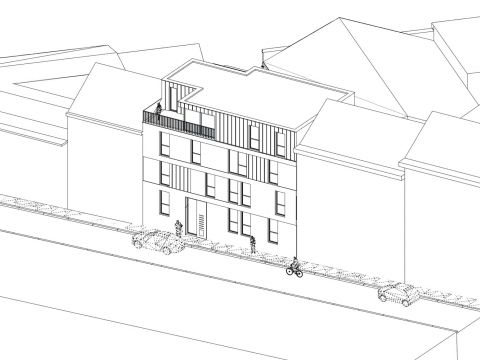
Situé à deux pas du centre-ville de Huy, cet immeuble de 7 appartements s’implante dans une dent creuse de la rue des Crépalles. La brique, le gabarit et les lignes de forces des habitations mitoyennes servent de point de départ à la composition de la façade afin de l’intégrer dans son contexte et de garantir une continuité dans la lecture de la rue. Ce respect de l’environnement construit donne lieu à un bâtiment en briques rouges nuancées, se déployant sur 3 niveaux et couronné par un penthouse bardé de panneaux de zinc, qui s’accorde parfaitement aux toitures avoisinantes. Afin de correspondre à la dynamique du cadre bâti, la façade est rythmée horizontalement par un jeu de retraits et de débords de briques, ainsi que verticalement par la création de baies verticales et l’apposition d’un panneautage texturé. L’ensemble donne lieu à une construction à l’allure contemporaine et intégrée, offrant d’agréables logements articulés autour d’une cour intérieure et jouissant chacun de terrasses privatives.
| Intervention Construction neuve | Permis d'urbanisme Mars 2022 |
| Lieu Huy, Belgique | Superficie 830 m² |







