A1202-LBN | Habitat individuel
Détails du projet
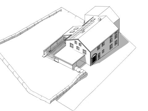
Le projet consiste en l’extension d’une habitation unifamiliale située en partie arrière (côte jardin) du bâtiment. La nouvelle extension comprend une salle à manger ouverte sur la cuisine actuelle ainsi que sur le jardin. Les travaux nous offrent également l’opportunité de retravailler les extérieurs afin de mettre en place une terrasse bioclimatique couverte, un carport avec rangement poubelle et un nouvel abri extérieur remplaçant l’abri vétuste existant. L'ensemble de ces travaux prend en compte le relief du terrain existant et permet, grâce à la création de murets, de lier le niveau de la chaussée avec le jardin situé en contre-haut.
| Intervention Extension | Permis d'urbanisme Novembre 2022 |
| Lieu Tavier, Belgique | Superficie 375 m² |













